Modernes Design trifft natürliche Wärme
Diese Küche begeistert mit einer gelungenen Kombination aus modernem Zement-Dekor und wohnlich warmer Feineiche-Arbeitsplatte.
Die großzügige Insel-Lösung lädt zum gemeinsamen Kochen und Genießen ein, während die elegante Hochschrank-Seite viel Stauraum und eine klare Linienführung bietet.
Hochwertige Blaupunkt-Geräte sorgen für Technik auf aktuellem Stand, ergänzt durch eine Spüle und Armatur in edlem Bronze-Dekor – ein stilvoller Akzent, der das harmonische Gesamtbild abrundet.
Hersteller: Häcker Küchen systemat
Model: AV 2010
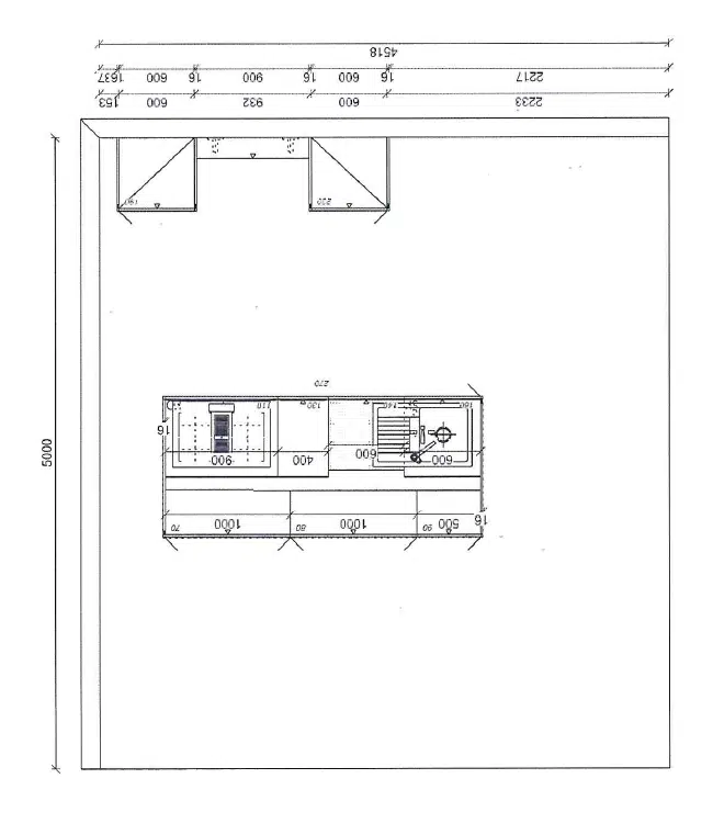
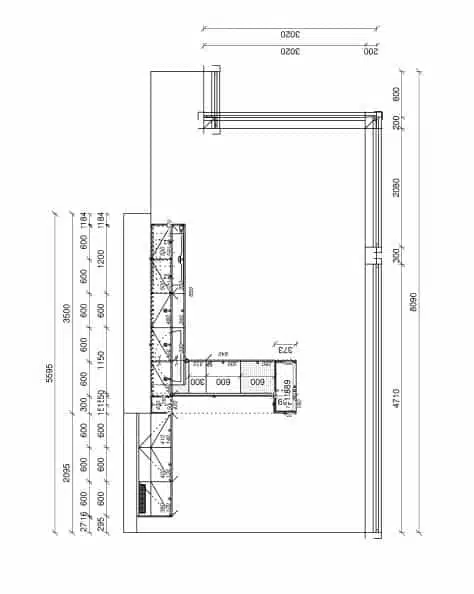
Grundriss:
Blaupunkt
Blaupunkt Muldenlüfter 5IX 80290
Kochfeld
Dunstabzug
|
|
| Zubehör: | Fettfiltereinsatz mit Meshgewebe, spülmaschinengeeignet |
| Technische Daten: | Kochfeld Spannung: 220 – 240 V Dunstabzug Spannung: 220 – 240 V |
| Datenblatt: | Download als PDF |
Blaupunkt Einbau-Geschirrspüler 5VF 5X00EWE
Ausstattung
Design, Komfort
|
|
| Technische Daten: | Leistung, Verbrauch 1) Auf einer Energieeffizienzklassen-Skala von A bis G Maße H × B × TGerätemaße: 82,0 – 90,0 × 59,8 × 55,5 cm |
| Datenblatt: | Download als PDF |
Blaupunkt Einbau Kühl-/Gefrierkombination 5CB 281SD0
Ausstattung, Komfort Einbau vollintegrierbar Kühlteil **** – Gefrierteil -18 ºC und tiefer |
|
| Technische Daten: |
Technische Daten und Maße (H x B x T)
|
| Datenblatt: | Download als PDF |
Blaupunkt Einbau-Backofen 5B30N 0250
Backofentyp, HeizartEinbau-Elektrobackofen mit 8 Heizarten:
Design, Komfort
|
|
| Zubehör: | Kombirost |
| Technische Daten: | Maße H × B × T
Leistung, Verbrauch
|
| Datenblatt: | Download als PDF |










