Stilvoller Kontrast und durchdachte Planung
Diese Küche verbindet zeitlose Eleganz mit moderner Planung. Matte Fronten in Weiß treffen auf eine trendige Arbeitsplatte in Beton Nebelgrau – ein harmonisches Zusammenspiel aus Klarheit und Charakter.
Besonderes Highlight sind die Griffleisten, Akzentflächen und Regale in Orientrot matt, die der Küche eine warme, individuelle Note verleihen.
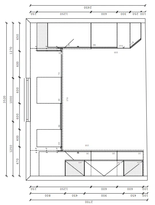
Die durchdachte U-Lösung wurde speziell für Räume mit Dachschrägen geplant und zeigt, wie funktional und designstark Küchen auch bei anspruchsvollen Raumverhältnissen sein können.
Mit hochwertigen Siemens-Geräten ausgestattet, vereint diese Küche Form, Farbe und Funktion auf höchstem Niveau.
Hersteller: Schüller Küchen
Model: Matera
Grundriss:
Siemens und Miele
Siemens Einbau-Herd iQ500 HE517ABS0
Verkürzen Sie die Kochzeit dank Schnellaufheizung. |
|
| Zubehör: | 1 Kombirost |
| Technische Daten: | Bauform: Einbau |
| Datenblatt: | Download als PDF |
Siemens Elektro-Kochfeld iQ 300 EA64RGNA1E
Das moderne Glaskeramik-Kochfeld für mehr Freude am Kochen und weniger Arbeit beim Saubermachen. |
|
| Technische Daten: | Geräteart: Kochfeld |
| Datenblatt: | Download als PDF |
Siemens Einbau-Waschmaschine iQ 700 WI14W442
Zahlreiche Funktionen und Programme, hohe Effizienz und komfortable Bedienung – vollintegrierte Waschmaschine. Farbe Weiß |
|
| Technische Daten: | Abmessungen des Gerätes Tiefe bei geöffneter Tür (90°) Trommelvolumen Höhe der Arbeitsplatte Nettogewicht Länge Anschlusskabel |
| Datenblatt: | Download als PDF |
Siemens iQ 300 Vollintegrierter Geschirrspüler SN73HX03UE
Ausgezeichneter wifi-fähiger Geschirrspüler mit Programmstatus-Projektion auf den Boden, dem infoLight, der auch für spezielle Einbausituationen geeignet ist und über Smartphone oder per Sprachsteuerung bedient werden kann. |
|
| Technische Daten: | Energieeffizienzklasse1 : C |
| Datenblatt: | Download als PDF |
Siemens iQ 300 Einbau-Kühlschrank KI32LVFE0
Einbau-Kühlschrank mit **** Gefrierfach, besonders stabilen Türablagen, heller LED-Beleuchtung und autoAirflow für optimale Lagerbedingungen der Lebensmittel. |
|
| Zubehör: | 1 Eiswürfelschale |
| Technische Daten: | Energieeffizienzklasse1: E 1 Auf einer Energieeffizienzklassen-Skala von A bis G |
| Datenblatt: | Download als PDF |
Miele Flachpaneelhaube DAS 4630
Flachpaneelhaube mit intuitiver SmartControl-Bedienung |
|
| Technische Daten: | Breite des Haubenkörpers in mm 596 |
| Datenblatt: | Download als PDF |













